Дом по адресу Новосибирск, Новосибирский район, за 2300000 р.

Адрес Новосибирск, Новосибирский район, село Раздольное, Советская улица
Цена 2 300 000 р.
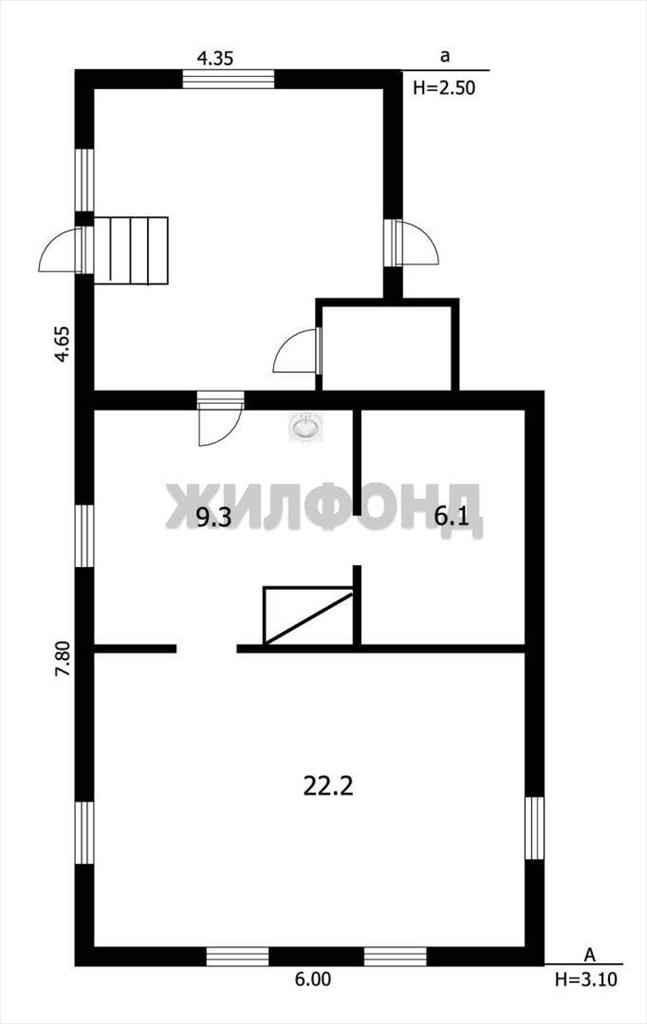
Площадь дома 37,6 м2, участка 8,63 м2
Дом по ул. Советская. Общей площадью: 37.60 кв.м. В продаже уютный дом в селе Раздольное. Отличное место для постоянного проживания! Дом построен из дерева и имеет общую площадь 37,6 кв. м. В доме две комнаты площадью 6,1 и 22,2 кв. м, а также кухня площадью 9,3 кв. м. Есть все необходимые коммуникации: электричество, водоснабжение, газ, канализация. Отопление газовое. На участке есть гараж, баня и надворные постройки. Участок площадью 10 соток, не угловой, с асфальтовым подъездом. Статус участка индивидуальное жилищное строительство. Подходит для круглогодичного проживания. Расположение дома идеально для тех, кто ценит спокойствие и уют, но при этом хочет иметь доступ ко всей необходимой инфраструктуре. Село Раздольное находится всего в 15 км от города, 30 мин на автобусе от станции метро, что позволяет быстро добраться до центра Новосибирска. В шаговой доступности остановки общественного транспорта, магазины, школа, детские сады и вся необходимая инфраструктура. Позвоните нам прямо сейчас, чтобы узнать больше! Возможен обмен на вашу недвижимость. Возможна продажа в рассрочку. При звонке, пожалуйста, сообщите номер варианта - JV080541100570
Объявление № 23459649
Дата подачи:
22 октября 2025 г. 1:52
Дата обновления:
22 октября 2025 г. 1:52
Просмотров 16 Хотите продать быстрее?

Продавец
Ирина Владимировна
Показать номер телефона
Пожаловаться
Комментарии:
Добавить